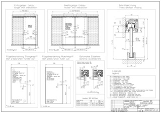
Levolan 120 with glass side panel * Sliding door fitting for 120 kg glass leafs and fixed panel attachment
- Sliding door fitting for glass doors up to 120 kg leaf weight and with lateral fixed panel
- With damping on one or both sides, for doors up to 120 kg leaf weight so that the door is stopped gently and pulled autonomously into the end position
- Small floor and side profiles create a generous clearance gauge for fixed panels and glass sliding doors
- Fixed glass panels can be installed quickly and easily with rubber seals
- Modular fixed panel option as an "add-on" for the basic hardware
Application Areas
- For design-oriented interior sliding doors for living and office areas
- For all single- and multiple-leaf sliding doors
- Installation to the ceiling
- For attachment on the wall and ceiling (directly and concealed) as well as for glass installation
- Damped on one or both sides with Levolan 120 SoftStop
- Smooth running with Levolan 120 SoftStop makes it particularly well suited for doors in living and office spaces
Technical data
| Levolan 120 with glass side panel | |
| Leaf material | Glass |
| Leaf weight (max.) | 120 kg |
| Number of leaves | 1-leaf, 2-leaf |
| Leaf width (min.) | 640 mm |
| Leaf width (max.) | 1440 mm |
| Leaf height (max.) | 3500 mm |
| Leaf thickness from | 10 mm |
| Leaf thickness to | 12 mm |
| Track geometry | straight |
| Type of installation | Wall, Ceiling |
| Side panel | Yes |
Downloads
LABELLING OBLIGATION: © Studio BE / GEZE GmbH
LABELLING OBLIGATION: © GEZE GmbH
Variants & Accessories
* Notice about the products displayed
The products mentioned above may vary in form, type, characteristics and function (design, dimensions, availability, approvals, standards etc.) depending on the country. For questions please contact your GEZE contact person or send us an E-Mail .