Levolan

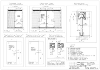
Levolan 60 glass with fanlight * Sliding door fitting for 60 kg glass leafs and fanlight attachment

Levolan 60 A sophisticated solution for the easy functional design and effortless movement of manual sliding door in internal applications
  • Modular fixed panel option as an "add-on" for the basic hardware
  • Up to 60 kg leaf weight and direct attachment to glass walls or fanlight
  • With damping on one or both sides for doors with up to 60 kg leaf weight, so that the door is quietly slowed down and moved automatically into the end position
  • Small floor and side profiles create a generous clearance gauge for fixed panels and glass sliding doors
  • Fixed glass panels can be installed quickly and easily with rubber seals
Contact us

Application Areas

  • For design-oriented interior sliding doors for living and office areas
  • For all single- and multiple-leaf sliding doors
  • Attachment directly to glass
  • For attachment on the wall and ceiling (directly and concealed) as well as for glass installation
  • Damped on one or both sides with Levolan 60 SoftStop
  • Smooth running with Levolan 60 SoftStop makes it particularly well suited for doors in living and office spaces

Technical data

Levolan 60 glass with fanlight
Leaf material Glass
Leaf weight (max.) 60 kg
Number of leaves 1-leaf, 2-leaf
Leaf width (min.) 400 mm
Leaf width (max.) 1240 mm
Leaf height (max.) 3500 mm
Leaf thickness from 8 mm
Leaf thickness to 12 mm
Track geometry straight
Type of installation Wall, Ceiling

Downloads

Contact

GEZE Central +31-40-262-90-80 GEZE Service +31-40-262-90-46