TS 4000 IS * Overhead door closer with link arm for double leaf doors with closing sequence control
- System comprising two door closers TS 4000 IS and TS 4000 with V-arm and release mechanism
- Closing force EN 1-6 with variable adjustment
- Can be used for right and left hand doors without conversion
- Closing sequence control holds the active leaf in the waiting position until the passive leaf is closed
- Mechanical latching action which accelerates the door shortly before the closed position
- Closing speed can be individually adjusted
- Integrated back check, slows down doors that are thrown open forcefully
- Visual closing force display for easy control of the setting
- All functions can be set from the front (except for latching action)
Application Areas
- Fire and smoke protection doors
- Double leaf single-action doors
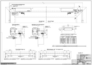
- Single-action doors up to 2800 mm hinge clearance and 1400 mm leaf width
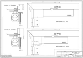
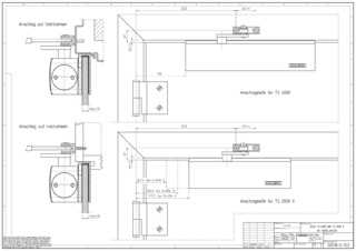
- Door leaf installation hinge side and transom installation opposite hinge side
Technical data
| TS 4000 IS | |
| Closing force in accordance with EN 1154 | EN 1 - 6 |
| Barrier-free in accordance with DIN 18040 up to leaf width (max.) in mm | 1100 mm |
| Leaf width (max.) | 1400 mm |
| Type of installation | Door leaf installation hinge side, Transom installation opposite hinge side |
| Opening angle (max.) | 180 ° |
| Suitability for fire protection doors | Yes |
| Closing force adjustable | Yes, stepless |
| Adjustable closing speed | Yes |
| Latching action adjustable | Yes, via link arm |
| Position of closing force adjustment | Front |
| Visual closing force display | Yes |
| Closing sequence control integrated | Yes |
Downloads
Variants & Accessories
* Notice about the products displayed
The products mentioned above may vary in form, type, characteristics and function (design, dimensions, availability, approvals, standards etc.) depending on the country. For questions please contact your GEZE contact person or send us an E-Mail .