E 170/2, 230 V up to 2400 mm

Safety scissors no. 60 * For protection of bottom-hung leaves

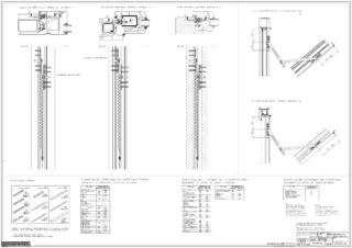
Safety scissor stay no. 60 Safety scissor stay as fall protection for vertically installed bottom-hung windows made from aluminium, PVC or wood
  • Facilitate a fixed connection between the window frame and leaf
  • Can be used from a leaf height of 700 mm
  • Depending on the leaf height and the leaf weight an opening width up to 1200 mm can be realised
  • Two safety scissors are needed per window leaf
Contact us

Application Areas

  • Designed for bottom-hung leaves
  • For use when fitting a chain drive to a bottom-hung window
  • Installation on wooden, PVC or metal windows
  • Leaf and frame installation

Downloads

Variants & Accessories

Contact

GEZE Central +31-40-262-90-80 GEZE Service +31-40-262-90-46