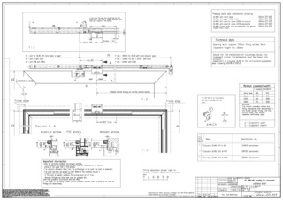
Scissors OL 90 N

Sliding leaf bracket for OL 90 N / OL 95 * Sliding leaf bracket for special window shapes suitable for the OL 90 N / OL 95 scissors

Sliding leaf bracket for special window shapes OL 90 N, OL 95 Accessories, transmission with cranked rod and special versions
  • Completely pre-mounted assembly group facilitates installation
  • For fixed connection of the OL 90 N and OL 95 scissors to special window shapes
Contact us

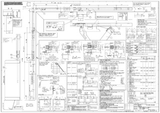
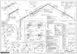
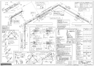
Application Areas

  • Create specialised shapes like angled, triangular, round and segmental arch windows
  • Installation on wooden, PVC or metal windows
  • Leaf installation

Downloads

Variants & Accessories

Contact

GEZE Central +31-40-262-90-80 GEZE Service +31-40-262-90-46