ECdrive T2-FR * Automatisch lineair-schuifdeursysteem in vlucht- en evacuatieroutes voor deuren tot 140 kg vleugelgewicht
- Smal design met slechts 100 mm kaphoogte voor meer vormgevingsvrijheid
- Met dubbele rolwagen en GCprofile Therm tot 140 kg vleugelgewicht toegestaan
- Efficiënte montage door voorgeboord loopprofiel en lange openingen
- Doorlopende vloergeleiding voor de gecontroleerde afvoer van regenwater verkrijgbaar
- Geïntegreerde kabelgeleidingen vergemakkelijken het leggen van de kabels
- Koppelbaar en door middel van open standaard (BACnet) in de gebouwautomatisering integreerbaar
- Automatische storingsherkenning en registratie
- Vrij parametrisering in- en uitgangen voor verschillende functies
- Geïntegreerde oplaadbare batterij voor noodopening bij stroomuitval
- Zelfreinigende loopwagen reduceert de onderhoudskosten
- Verschillende mechanische en elektrische vergrendelingen zijn optioneel beschikbaar
- Service-interface voor eenvoudig onderhoud
De nieuwe ECdrive T2-FR zorgt met zijn smalle design voor nieuwe vormgevingsmogelijkheden en dat tegen een uitstekende prijs-/prestatieverhouding. In combinatie met het profielsysteem GCprofile Therm wordt de energie-efficiëntie extra verbeterd.
Toepassingsgebieden
- Schuifdeursystemen met enkele en dubbele vleugel in vluchtroutes
- Binnen- en buitendeuren met hoge toegangsfrequentie
- Complete oplossing voor ingangsgebieden met GCprofile Therm en bovenlicht
- Bij verhoogde eisen aan de dichtheid of energie-efficiëntie
- Openingsbreedtes van 700 tot 3000 mm mogelijk
- Deurvleugelgewichten tot 140 kg per vleugel
- Geschikte profielsystemen zijn profielsysteem met smalle lijst met ISO- en Mono-glas, GCprofile Therm, ESG-klemprofiel, kozijn- en houten deurblad door de klant
Inbouwsituaties in referentieobjecten en -video's
Productspecificaties
| ECdrive T2-FR | |
| Voor 1-vleugelige deursystemen | Ja |
| Voor 2-vleugelige deursystemen | Ja |
| ISO-glas met smalle lijst | Ja |
| MONO-glas met smalle lijst | Ja |
| ESG-klemprofiel | Ja |
| Schuifdeur (door de klant te leveren) | Ja |
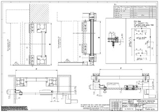
| Hoogte | 100 mm |
| Diepte | 190 mm |
| Vleugelgewicht (max.) 1-vleugelig | 120 kg |
| Vleugelgewicht (max.) 1-vleugelig met GCprofile Therm en dubbele loopwagen | 140 kg |
| Vleugelgewicht (max.) 2-vleugelig | 120 kg |
| Vleugelgewicht (max.) 2-vleugelig met GCprofile Therm en dubbele loopwagen | 140 kg |
| Openingsbreedte 1-vleugelige deuren | 700 mm - 3000 mm |
| Openingsbreedte 1-vleugelig met GCprofile Therm | 1500 mm |
| Openingsbreedte 2-vleugelige deuren | 900 mm - 3000 mm |
| Openingsbreedte 2-vleugelig met GCprofile Therm | 3000 mm |
| Bedrijfstemperatuur | -15 - 50 °C |
| Beschermingsgraad | IP20 |
| Ontkoppeling van de netspanning | Hoofdschakelaar in de aandrijving |
| Normconformiteit | AutSchR, DIN 18650, DIN EN ISO 13849: Performance Level D, EN 16005 |
Downloads
Varianten & bevestigingsmateriaal
* Opmerking over de weergegeven producten
De hierboven genoemde producten kunnen variëren qua vorm, type, kenmerken en functie (ontwerp, afmetingen, beschikbaarheid, goedkeuringen, normen etc.) afhankelijk van het land. Neem voor vragen contact op met uw GEZE-contactpersoon, of stuur ons een E-Mail .